Design

Villas| apartments| hotels| hospitals| shopping malls |more……

Whole House Design

After we receive your house or building illustrations, George Building’s design team will create a unique design that fits your requirements in terms of space usage, budget, and personal preferences.

Our designers can provide 3D rendering with recommended materials, as well as comprehensive design detailing. We also offer fully-coordinated working drawings to make sure the materials to be purchased can be installed and used at the end of the project.

China's Top Design Team

Our design team here in China has been collaborating with Italian designers and suppliers to enhance its global competency.Armed with decades of industry experience, we can provide proposals with different cost levels, so you can get what you really want at competitive prices while staying within your budget and not giving up the quality that you need.

Global Clients
0 +
Sales & Engineer Team
0 +
Years Design & Construction Experiences
0 +

Service Process

Contact us to make an appointment to discuss your project requirements where we check and confirm what you need in terms of materials and services.

You choose your preferred decoration style.

We make a preliminary design plan within three (3) days.

You sign the contract and make a payment deposit.

We make the necessary adjustments in the house or building design plan within one (1) week.

Our main designer will accompany the owner, owner’s representative or sourcing agent in the selection and purchase of building materials.

We will give you updates on the progress of the production process.

We provide 3-stage project supervision and installation guidance.

Contact our 24-hour online customer service center whenever you need assistance.

Stylized 2D Floorplans

2D floor plans are now essential features in the real estate market. Present customers with a professional floorplan, showcasing house layout with textured floor and furniture.

Before
After

Get more with Stylized 2D Floorplan Solutions

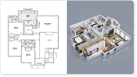
3D Floorplans

Make your listing stand out from the crowd and help your buyers move in mentally. From furniture layouts, to wall colour and floor textures, show them all.

Before
After

Get more with Stylized 3D Floorplan Solutions

Customized Design

Here at George Buildings, we recognize our clients’ personal needs and celebrate their distinctive style. Whether you prefer minimalist designs or elaborate and intricate styles, our talented designers respect our clients’ design preferences.

We will integrate our clients’ preferences and space requirements to create beautiful, functional spaces, knowing that we have available building materials and manpower expertise to make it all possible.

Our Foshan operation centre has 12 product display areas with a total area of 20,000 m².
We have a professional design area where
you can comfortably participate in the
design process.

Case of home decoration style

We design different decoration styles for thousands of customers every year, such as modern style, light luxury style, European – inspired simple style, log style, creamy style and so on. As long as you like it, we can design it for you.

Contact Us

Share Your Project Details – Get a Quote in 24 Hours!

Kindly Send Us Your Project Details .
We Will Quote for You Within 24 Hours .

One-Stop Project Solution Supplier For All Your Building Needs

Contact Us

Kindly Send Us Your Project Details . We Will Quote for You Within 24 Hours .

Contact us via WhatsApp and we will immediately assist you with your project.